plan de maison
plan d'une maison individuelle sud Loire

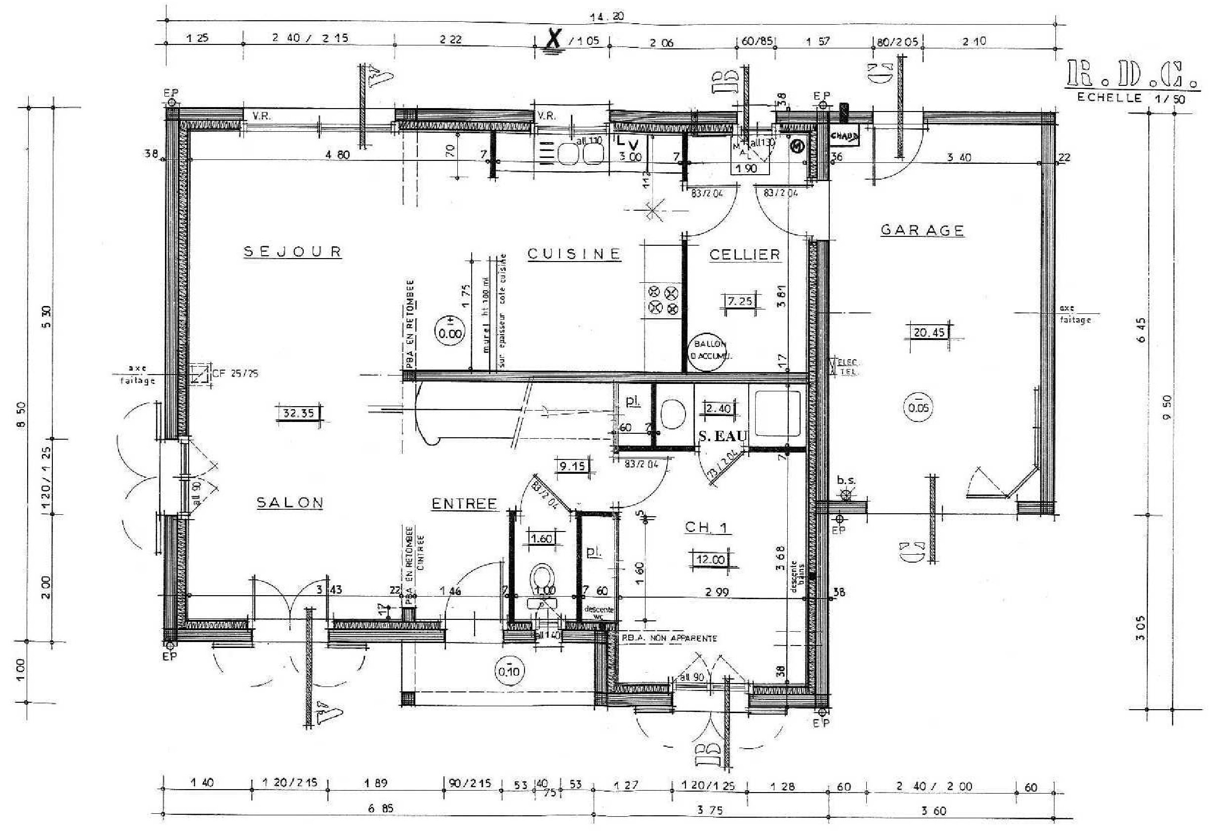
Ce plan de maison permettra à une classe de situer les différents éléments sanitaires et de chauffage qu'il faut implanter et raccorder.


plan d'une maison individuelle sud Loire